Gallatin, Tennessee
Kennesaw Farms Clubhouse
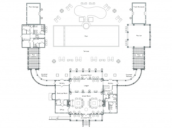
The Clubhouse at Kennesaw Farms was designed to become the centerpiece of community entertainment in this Traditional Neighborhood Development, and to carry the rich, historical tradition and equestrian theme throughout. The clubhouse can accommodate large gatherings, or it can be partitioned for smaller venues. The site is situated on the terminating axis of a major boulevard within the neighborhood, to which the building responds accordingly. Due to the amount of vehicular traffic surrounding the building, the clubhouse was designed with radiating verandas terminating in pool house pavilions. The pavilions not only emphasize the street pattern but also provide privacy for swimming pool users from traffic.
Click on the link to visit the web site.
www.kennesawfarms.com
